Casa Rústica a Sineu (Mallorca)

Aquesta propietat es troba en una bonica plaça de la vila medieval de Sineu, al centre de Mallorca.
Preciosa ciutat amb molt de caràcter, famosa per la seva arquitectura, gastronomia i cultura. Poble tranquil amb tots els serveis al teu abast i a 20 minuts de la capital i les belles platges al nord de l’illa i en la Serra de Tramuntana.
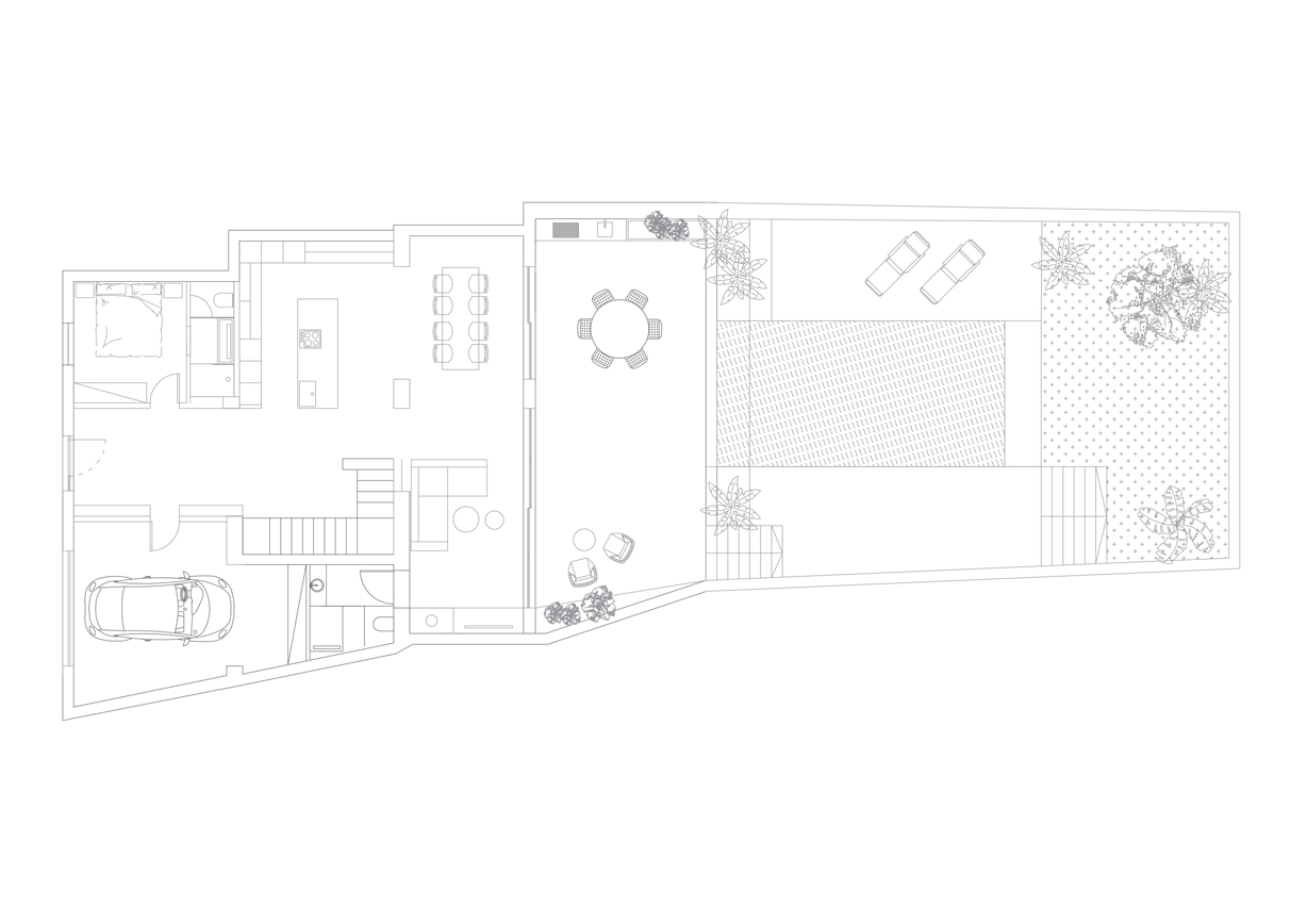
T’oferim la possibilitat d’adquirir un habitatge espaios amb projecte de disseny inclòs. Amb totes les comoditats i un estil mediterrani actualitzat. La casa té 4 habitacions, totes elles amb bany en suite. Grans espais comuns i terrassa a diversos nivells, Piscina infinity i zones enjardinades.
Un projecte dissenyat per fer d’aquesta casa la casa dels teus somnis.
No. Ref.: 27
Tipo: Unifamiliar
Poblacío: Sineu
Terreny: 356 m2
Construït: 296 m2
Dormitoris: 4
Banys: 5
Piscina: 9 x 4 m (incl. despordament)
Jardí: 186 m2
Calefacció: opt. terra radiant
Aire Acond.: Sí
Parking/Garatge: 26 m2
Preu consultar

