Habitatge unifamiliar a Pollença (Mallorca)
Habitatge unifamiliar situat a la localitat de Pollença, una privilegiada i tranquil · la zona a nord de l’illa i al costat de la Serra de Tramuntana.
Habitatge de de 123 m2 construïts.
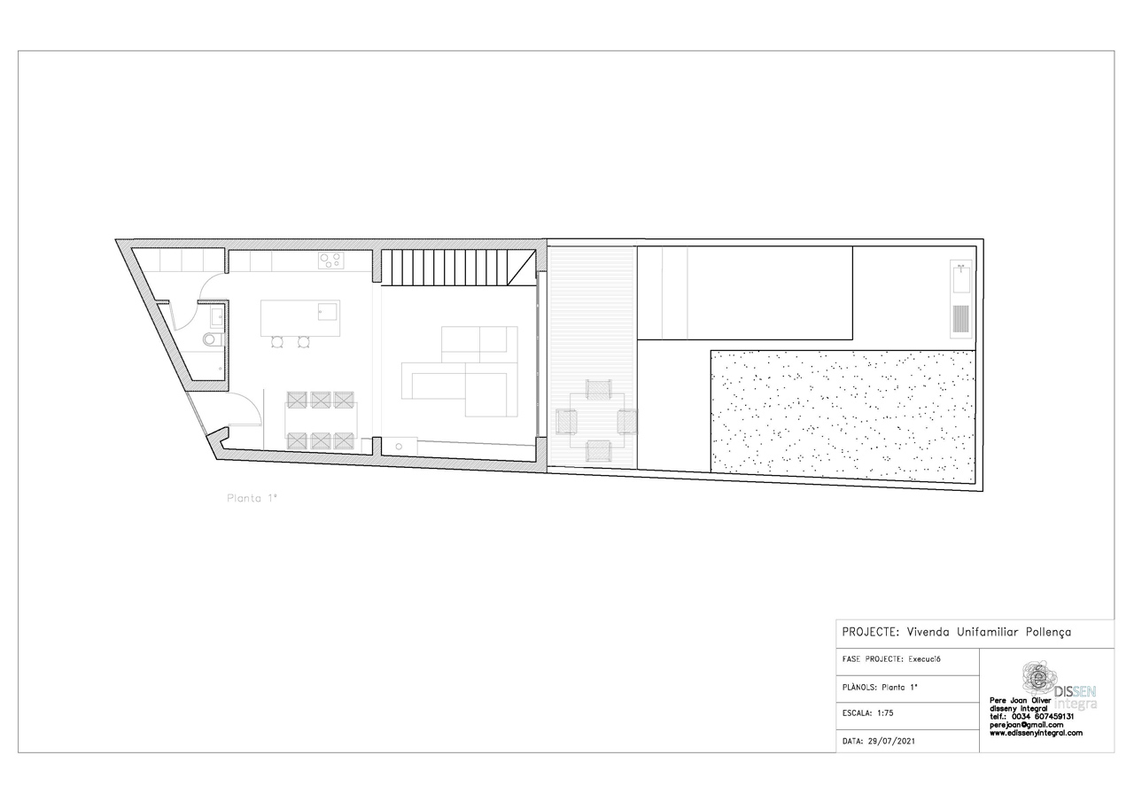
Planta baixa amb cuina de concepte obert, saló menjador, rebost, bugaderia, un lavabo i terrassa de 15 m2 + pati de 60 m2 amb piscina i zona enjardinada.
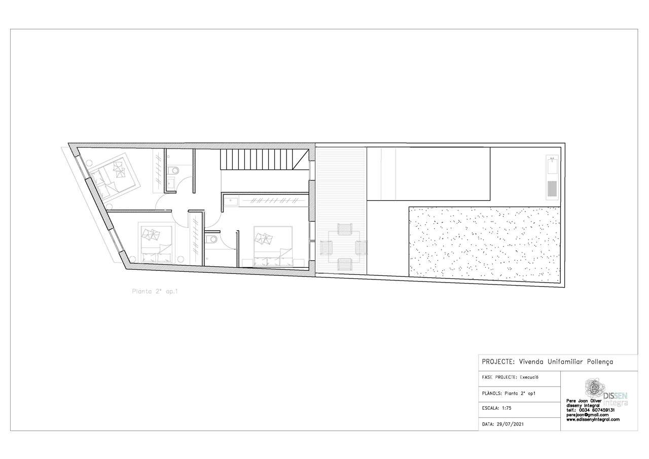
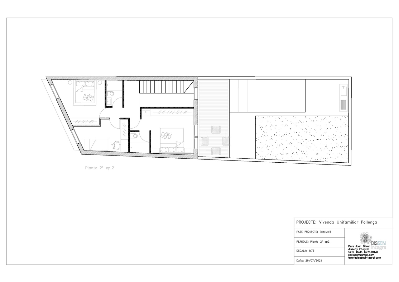
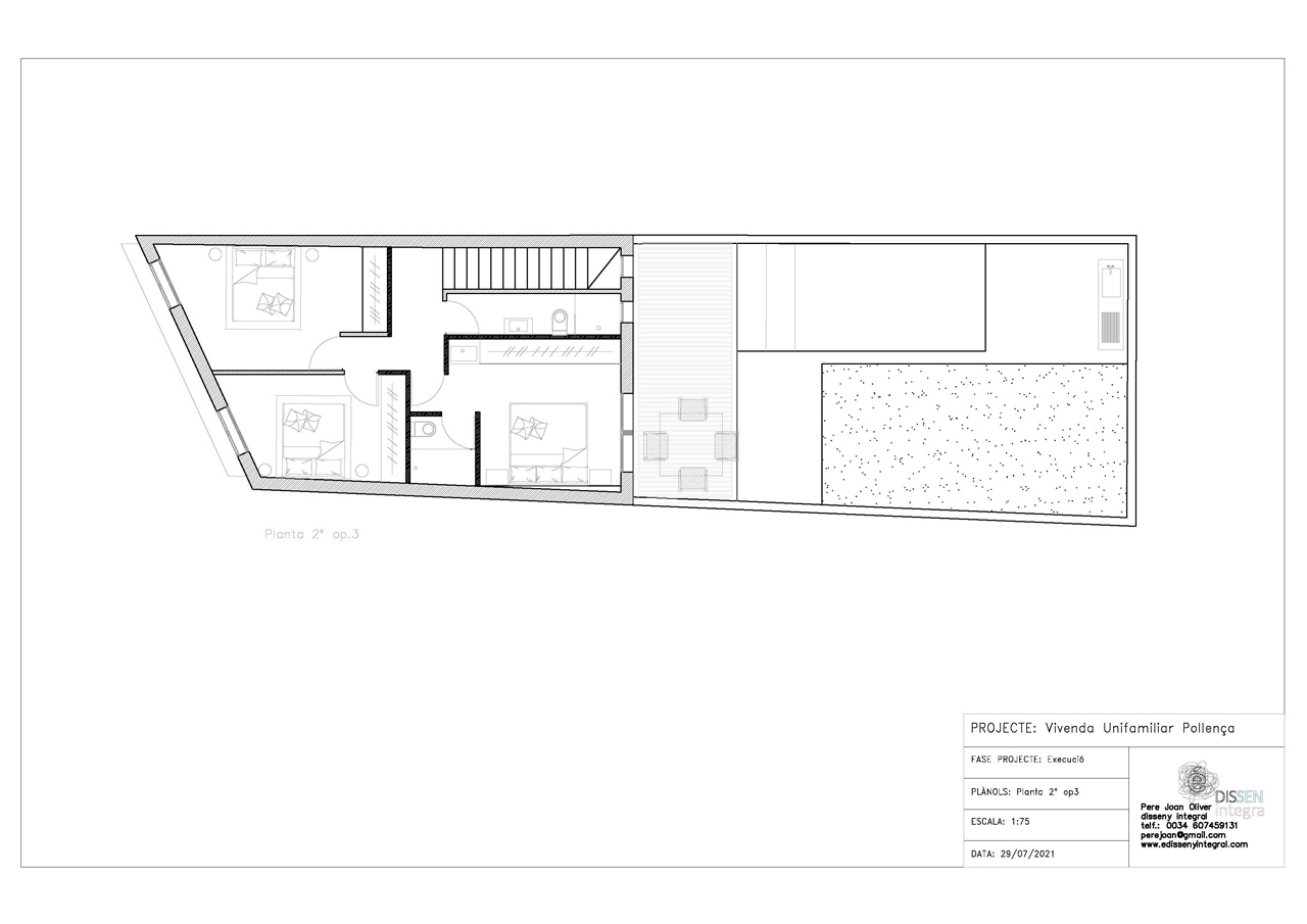
A la segona planta hi ha tres habitacions i dos banys, una d’elles amb bany en suite.
Ideal famílies, molt acollidora i privada.
No. Ref.: 31
Tipo: Unifamiliar
Població: Pollença
Terreny: 144,9 m2
Construït: 123 m2
Dormitoris: 3
Banys: 3
Piscina: Sí
Terrassa: 15,4 m2
Jardí: 60,35 m2
Calefacció: Sí
Aire Acond.: Sí
Preu consultar




